91看片的免费的网站,91手机看片你懂的,91APP免费看片,91看片在线观看免费

陶瓷一線91看片在线观看免费陶瓷十大暢銷91看片在线观看免费廣東省守合同重信用企業工程瓷磚推薦91看片在线观看免费聯係91看片的免费的网站我要加盟


護眼防滑磚開拓者

91看片的免费的网站陶家裝:佛山禪城怡翠晉盛花園91㎡的現代風格91APP免费看片鑒賞

【作者】瑞兒 【來源】91看片的免费的网站陶【發布日期】2017/3/9

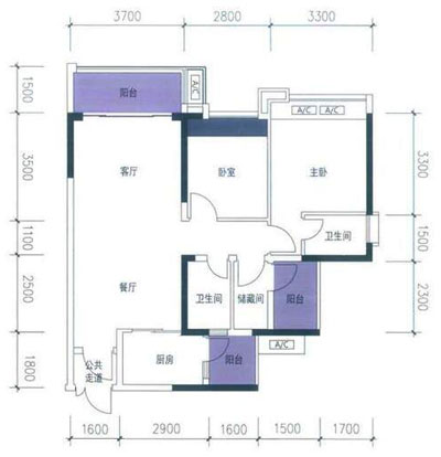
小區:佛山禪城怡翠晉盛花園

戶型:三房兩廳

設計風格:現代風格

應用瓷磚91看片在线观看免费:91看片的免费的网站陶瓷磚

本案設計理念:一個美美的家都是從毛坯開始的,一步一個腳印去完善!接下來的這款現代風格三居室,家居空間顯的清新簡潔。整個空間采用的是淺色係,呈現出了一個含蓄而柔和的環境,平靜而寧和。

91看片的免费的网站陶家裝:佛山禪城怡翠晉盛花園91㎡的現代風格91APP免费看片鑒賞

【禦園】7座05單元

91看片的免费的网站陶家裝:佛山禪城怡翠晉盛花園91㎡的現代風格91APP免费看片鑒賞

91看片的免费的网站陶家裝:佛山禪城怡翠晉盛花園91㎡的現代風格91APP免费看片鑒賞

91看片的免费的网站陶家裝:佛山禪城怡翠晉盛花園91㎡的現代風格91APP免费看片鑒賞

91看片的免费的网站陶家裝:佛山禪城怡翠晉盛花園91㎡的現代風格91APP免费看片鑒賞

91看片的免费的网站陶家裝:佛山禪城怡翠晉盛花園91㎡的現代風格91APP免费看片鑒賞

91看片的免费的网站陶家裝:佛山禪城怡翠晉盛花園91㎡的現代風格91APP免费看片鑒賞

網站地圖