91看片的免费的网站,91手机看片你懂的,91APP免费看片,91看片在线观看免费

陶瓷一線91看片在线观看免费陶瓷十大暢銷91看片在线观看免费廣東省守合同重信用企業工程瓷磚推薦91看片在线观看免费聯係91看片的免费的网站我要加盟


護眼防滑磚開拓者

91看片的免费的网站陶瓷磚應用效果:徐州開元翡翠灣G戶型91APP免费看片效果鑒賞

【作者】瑞兒 【來源】91看片的免费的网站陶【發布日期】2016/6/22

 

小區:徐州開元翡翠灣

戶型:G戶型

設計風格:新中式風格

應用瓷磚91看片在线观看免费:91看片的免费的网站陶瓷磚

本案設計理念:新中式風格不是純碎的文化元素堆砌,而是通過對傳統文化的認識,將現代元素和傳統元素結合在一起,以現代人的審美需求來打造富有傳統韻味的事物,表達對清雅含蓄、端莊豐華的東方式精神境界的追求。

 

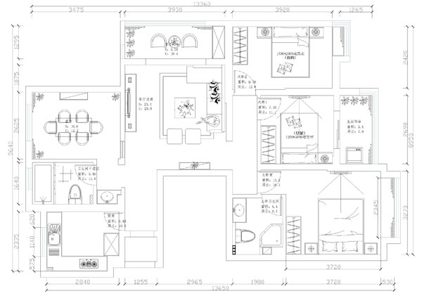
徐州開元翡翠灣戶型圖

徐州開元翡翠灣G戶型圖

91看片的免费的网站陶瓷磚應用效果:徐州開元翡翠灣G戶型91APP免费看片效果鑒賞

整體布局上以淺色係為主,在家具與配飾的精心選配上加入了硬朗及中性元素,結合金剛釉Ⅱ代瓷磚KJP的玉石紋理的柔和,讓居室看上去清爽舒適,卻又不失溫馨的氛圍。電視櫃和茶幾的顏色與門顏色相呼應,提亮了整個客廳的亮度,同時把複古而慵懶的感覺打造出來。

91看片的免费的网站陶瓷磚應用效果:徐州開元翡翠灣G戶型91APP免费看片效果鑒賞

餐廳以簡潔為主導,餐桌椅顏色差異的搭配,與地麵金剛釉Ⅱ代瓷磚KJP1803的柔和及大理石瓷磚KYX8110的剛硬結合,協調而富有層次,筒燈散發光芒,增加了視覺的通透感,使不大的餐廳沉穩而不泛柔美。

91看片的免费的网站陶瓷磚應用效果:徐州開元翡翠灣G戶型91APP免费看片效果鑒賞

小小的空間,卻蘊含著大大的智慧!廚房91APP免费看片的好壞直接影響廚師的心情,心情不好,飯菜的味道也會跟著變差了哦!這款91看片的免费的网站陶瓷磚噴墨瓷片充滿活力的橙色讓整個空間都活力十足,看著都是心情好好!在這樣的廚房裏做飯,瞬間化身男神、女神!

91看片的免费的网站陶瓷磚應用效果:徐州開元翡翠灣G戶型91APP免费看片效果鑒賞

91看片的免费的网站陶瓷磚這款噴墨瓷片沉穩的灰色調,讓人瞬間就將浮躁的心緒洗滌!簡單卻不單調,讓你盡享你的獨屬淨化空間!

91看片的免费的网站陶瓷磚應用效果:徐州開元翡翠灣G戶型91APP免费看片效果鑒賞

整體格局設計簡單卻不失格調。筒燈散發著淡淡的光暈,把金剛釉Ⅱ代瓷磚KJP1803溫馨,KYX8110的沉穩演繹的更加的通透徹底,牆麵沒有太多的裝飾,簡單的一副字畫,就讓整個空間清雅含蓄,清新舒適。

 

網站地圖